Les infos Essentielles
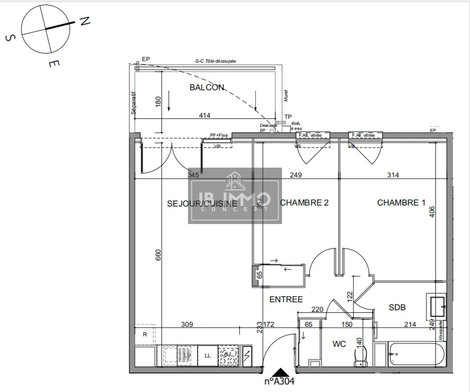
Le Muy, Appartement neuf type 3 , situé au 3 et dernier étage dans une nouvelle petite résidence sécurisée. Cet appartement est composé d'une belle pièce de vie, cuisine, 2 chambres, salle de bains, wc. Vous disposerez d'unbox double en s/sol, parkings visiteur, local 2 roues. Secteur calme , proximité de tous les commerces, transports, supermarchés, écoles et lycée. Frais de notaire réduits!
Les infos Energetiques
Ce site est protégé par reCAPTCHA, les Politiques de Confidentialité et les Conditions d'Utilisation de Google s'appliquent.
Détails des diagnostics énergétiques
Appartement type 3 neuf
