Les infos Essentielles
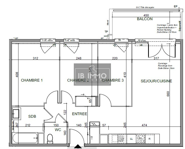
Le Muy, Appartement T4 neuf , situé dans une petite résidence sécurisée au calme.Cet appartement est composé d'une entrée avec placard, d'un séjour cuisine, 3 chambres, salle de bains, wc. Frais de notaire réduits.Vous disposerez de 2 stationnements en s/sol privatifs, parkings visiteurs et local 2 roues. Proximité de tous les commerces, supermarché, écoles et lycée.Frais de notaire réduits! Pour plus de renseignements contactez Isabelle Breton votre agent indépendante local au 07 48 17 34 12
Les infos Energetiques
Ce site est protégé par reCAPTCHA, les Politiques de Confidentialité et les Conditions d'Utilisation de Google s'appliquent.
Détails des diagnostics énergétiques
Appartement T3 neuf en dernier étage
