Les infos Essentielles
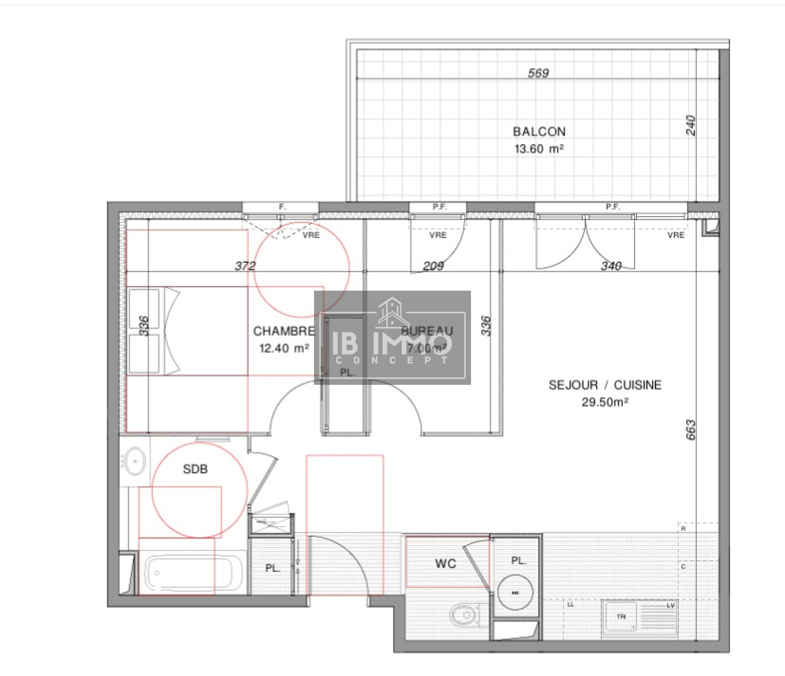
Sur les hauts de Saint-Raphaël, au pied de l’Estérel et à quelques minutes du centre-ville et de toutes les commodités, je vous propose ce type 3 en cours de construction. Il est composé d'une entrée avec placard, un wc indépendant avec placard, une chambre, un bureau, une salle de bain, une belle pièce de vie, cuisine de 30m². Terrasse de 14 m², ascenseur, volets électriques, fibre, visiophone.Vous disposerez également d'un parking extérieur privatif, local vélo, ainsi qu'une cave privative. Pour tous renseignements, contactez Isabelle au 0748173412
Les infos Energetiques
Ce site est protégé par reCAPTCHA, les Politiques de Confidentialité et les Conditions d'Utilisation de Google s'appliquent.
Détails des diagnostics énergétiques
Appartement type 3 neuf
