Les infos Essentielles
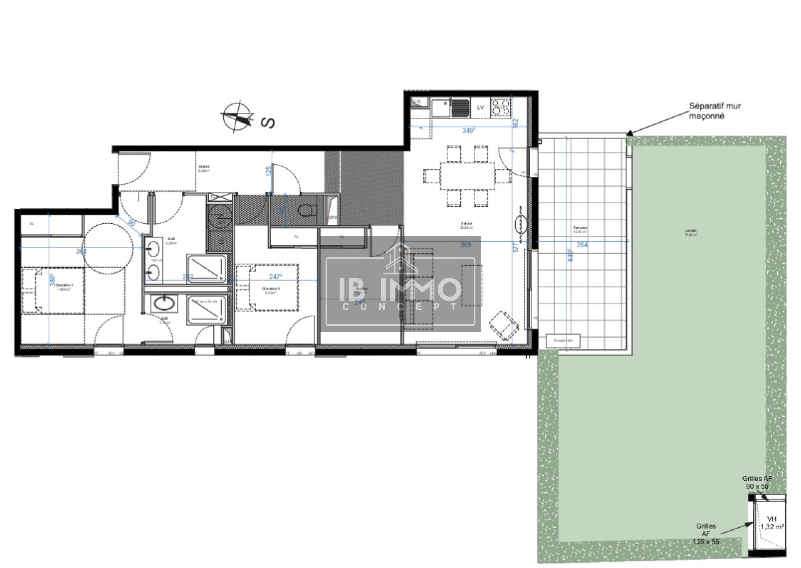
Dans une résidence intimiste située sur les hauteur de St Raphael, je vous propose cet appartement type 4 jamais habité, de 83 m² composé d'une entrée, 3 chambres avec placards, séjour cuisine , 2 salles d'eau, wc suspendu, buanderie. Equipé de la climatisation réversible, volets électriques, visiophone, terasse de 17 m² et Jardin de 76 m² expo sud. Proximité de tous commerces, transports et plages. 2 Parkings en s/sol , ainsi qu'une cave. Frais de notaire offerts ! Vous souhaitez prendre rendez vous pour une visite ,Votre contact Isabelle Breton au 07 48 17 34 12
Les infos Energetiques
Montant estimé des dépenses annuelles d'énergie pour un usage standard est compris entre 380 € et 570 € . Prix moyens des énergies indexés sur les années 2021, 2022 et 2023 (abonnements compris).
Ce site est protégé par reCAPTCHA, les Politiques de Confidentialité et les Conditions d'Utilisation de Google s'appliquent.
Détails des diagnostics énergétiques
Montant estimé des dépenses annuelles d'énergie pour un usage standard est compris entre 380 € et 570 € . Prix moyens des énergies indexés sur les années 2021, 2022 et 2023 (abonnements compris).
St Raphael Appartement T3 neuf avec jardin
